Raw Materials Handling

Large-scale Raw Materials Handling at Bushan Steel's Integrated Steel Plant

Page: 4/4

Related Vendors

Blast Furnace Materials

A blast furnace requires continuous feed of raw materials; hence the input material is stored in the stock house and then fed to the blast furnace to ensure uninterrupted feed. The raw materials coke, sinter, ore, pellets and additives are received at the top of the stock house and subsequently stored in corresponding bins. Coke is fed to six bins through a rotating conveyor. The undersize material is screened out and fed onto the trucks while the desired material is fed to the blast furnace charging conveyors. Sinter stored in two bins, ore stored in one bin, and additives stored in four bins are also fed to the blast furnace charging conveyors. All these materials are fed to the blast furnace charging conveyors through weigh feeders and gates operated in a sequential manner (BSL scope).

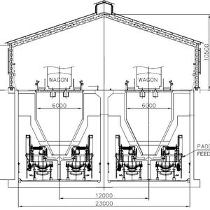
Gallery
Gallery with 12 images

The slag generated from the blast furnace BF1, BF2 and, in future, BF3 are conveyed to the wagon loading area for transportation outside the plant boundary. The stock piling in the storage yard is carried out by two trippers.

Power Plant and Coal Washery

Bhushan Steel’s expansion plans included enhancement of its power production capacity and L&T was given the Coal Handling Plant (CHP) works of this captive power plant and the details of the same are covered in the forthcoming section. The incoming coal (0 to 300 mm) encompasses screens, double roll crushers, hammer mill crushers to facilitate the feed to captive power plant and coal washery as per system requirement. Coal is initially screened for -75 mm separation and the oversize material is crushed to -75 mm by double roll crushers in the primary screen and crusher house. The undersize material is conveyed to the six bins inside the secondary screen house using two reversible shuttle conveyors.

From the secondary screen house, -6 mm screened material using six flip flop screens is conveyed to the coal fines silo through a series of conveyors. The crushed material (-75 mm) from the primary screen and crusher house is conveyed to the secondary crusher house through high angle conveyors and fed to the two bins using a reversible shuttle conveyor. Two hammer mill crushers are used to crush the material from -75 to -6 mm and the crushed material is fed to nine bins in the tertiary screen house. Flip flop screens are used to the screen the material for 6 mm separation and the undersize material is conveyed to the coal fines silo through high angle conveyors. The oversize material is fed to two secondary hammer mill crushers for further crushing is carried and a closed loop system is available to ensure proper crushing of material.

To increase feed for coal washery, part of the crushed material from primary screen and crusher house is fed to the secondary screen and crusher house where three roller crushers are used to crush the material to -20 mm and the same is fed to tertiary screen house. The undersize material (0 to 6 mm) from the tertiary screen house is fed to coal fines silo for onward feed to power plant through a series of conveyors and the oversize material (6 to 20 mm) from tertiary screen house is fed to the coal silo for usage in the coal washery.

Project Management

This project being one of the biggest RMHS executed by L&T was unique because of the sheer volumes that were handled and some of the challenges faced during the execution are covered in this section.

Handling of such enormous volumes in a Brownfield Expansion Project with stringent time schedules had poised tremendous challenges in all areas of execution right from design, engineering, procurement, manufacturing, inspection, supply, storage, erection, testing and commissioning. The complete engineering of this project was carried out by L&T and the same was vetted by Mecon, a consulting company appointed by BSL. During the initial stage itself, it was made sure of that the components the yard machines, conveyor components, major equipment such as crushers, screens etc. were standardised to reduce the requirement of spares and downtime during plant operation.

Detailed planning and conveyor wise monitoring of supply items was made to ensure that the materials were supplied to site for just-in-time erection and commissioning as per priority requirement of the client. Though space constraint made activities such as logistics, storage and construction difficult the Phase III expansion was under progress without much hindrance to the existing production facility. An experienced project management team, dedication and meticulous planning were behind the success of this project.

Summary and Conclusion

The plant is in final stages of erection and commissioning and the priority circuits are already commissioned and are working successfully as per the client requirement. With the execution of this project, L&T has again proved its capability in the execution of raw material handling dystem of a steel plant.

L&T by virtue of its rich experience in the bulk material handling fields over the past three decades backed by its engineering and construction capabilities is in a position to offer single point solution from concept to commissioning of material handling plants along with operation and maintenance of plants of any kind in any part of the world. n

(ID:42378613)